la Violeta

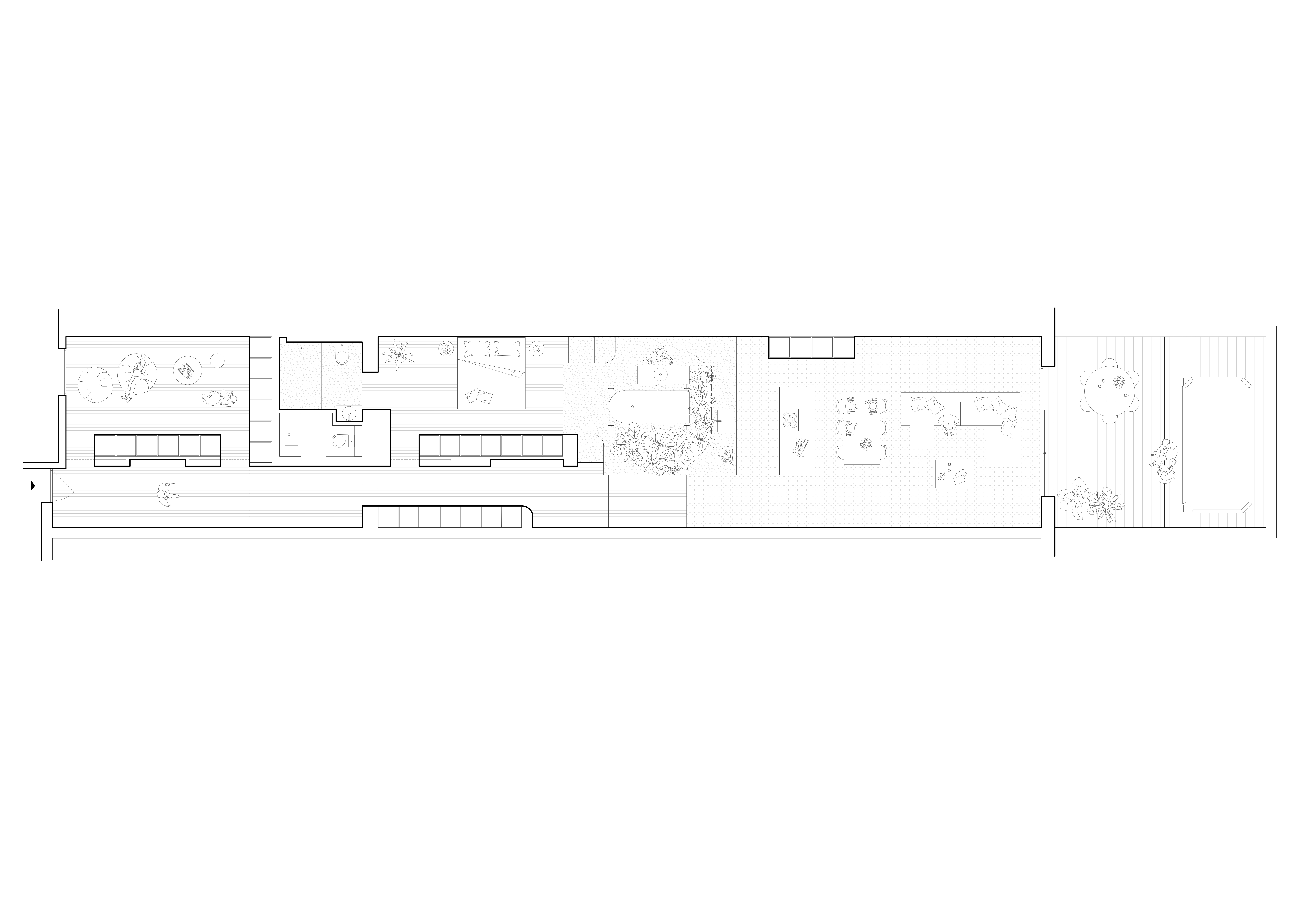
La Violeta transforms a pre-existing courtyard into the center of the new proposal, freeing its old vertical boundaries and building beneath it, the stony topographic platform that houses the wet functional program and resolves the distribution of the main spaces of the house. On this platform, meticulously shaped and excavated to create the transition between the different levels of space, most of the elements that require a water supply, such as bathtubs, planters, sinks, and washbasins, are strategically grouped. La Violeta works on operational depth and access control, studying different permeability strategies, at a domestic scale, between various spaces in the house. The segregation between bathroom, bedroom, and living room is resolved through materiality, topography, vegetation, and free heights. A sequence of differentiated spaces is generated, with diffuse boundaries between them, allowing for simultaneous uses while ensuring privacy between them.

CRU innovative flat renovation project in Barcelona. La Violeta, an apartment converted into a modern and natural space
CRU innovative flat renovation project in Barcelona. La Violeta, an apartment converted into a modern and natural space
CRU innovative flat renovation project in Barcelona. La Violeta, an apartment converted into a modern and natural space
CRU innovative flat renovation project in Barcelona. La Violeta, an apartment converted into a modern and natural space
CRU innovative flat renovation project in Barcelona. La Violeta, an apartment converted into a modern and natural space
CRU innovative flat renovation project in Barcelona. La Violeta, an apartment converted into a modern and natural space
CRU innovative flat renovation project in Barcelona. La Violeta, an apartment converted into a modern and natural space
CRU innovative flat renovation project in Barcelona. La Violeta, an apartment converted into a modern and natural space
CRU innovative flat renovation project in Barcelona. La Violeta, an apartment converted into a modern and natural space
CRU innovative flat renovation project in Barcelona. La Violeta, an apartment converted into a modern and natural space
CRU innovative flat renovation project in Barcelona. La Violeta, an apartment converted into a modern and natural space
CRU innovative flat renovation project in Barcelona. La Violeta, an apartment converted into a modern and natural space
CRU innovative flat renovation project in Barcelona. La Violeta, an apartment converted into a modern and natural space
CRU innovative flat renovation project in Barcelona. La Violeta, an apartment converted into a modern and natural space
CRU innovative flat renovation project in Barcelona. La Violeta, an apartment converted into a modern and natural space
CRU innovative flat renovation project in Barcelona. La Violeta, an apartment converted into a modern and natural space
CRU innovative flat renovation project in Barcelona. La Violeta, an apartment converted into a modern and natural space