la Rocio

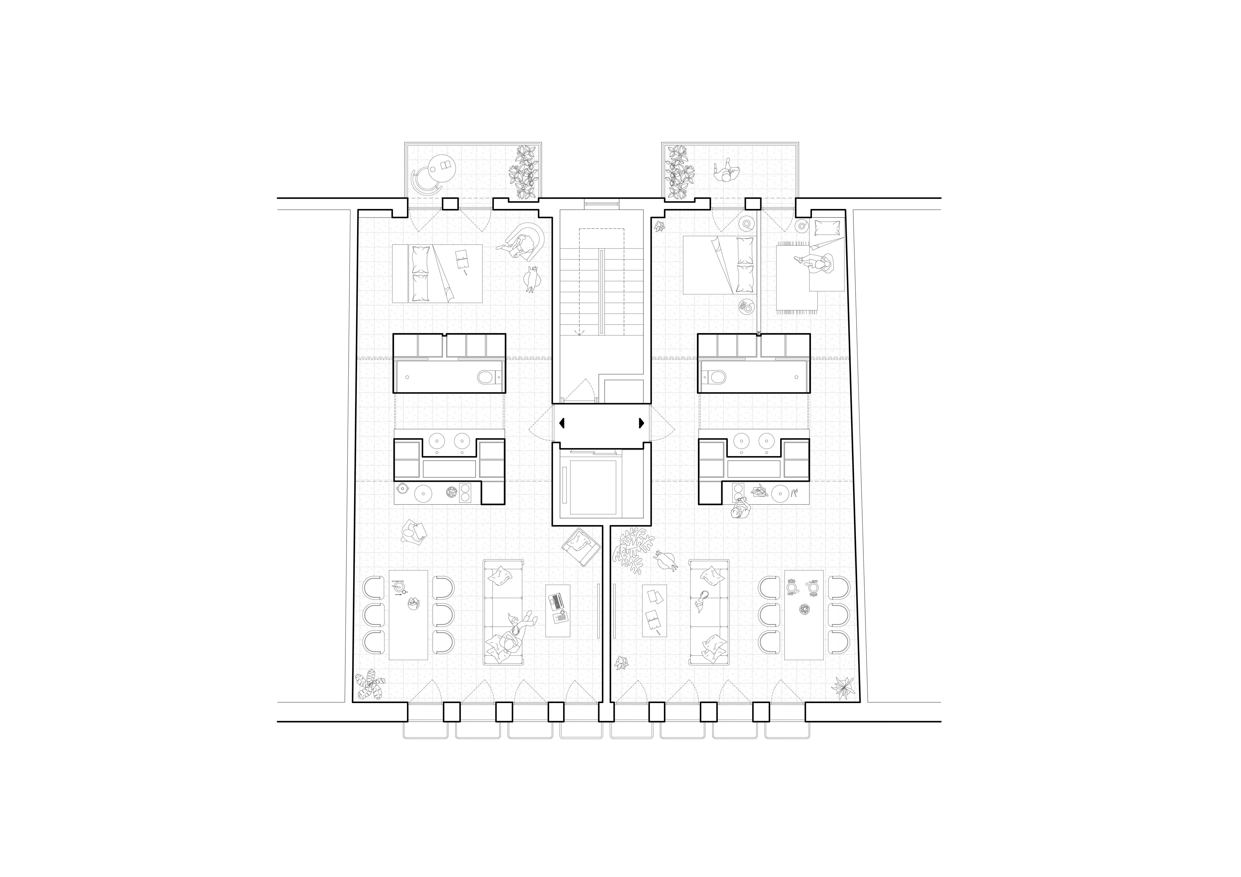
The placement of the vertical core in an interstitial position allowed La Rocío to solve several classic problems of multifamily buildings: distancing the night areas of both apartments, creating an air cavity between them and thus reducing noise pollution; and on the other hand, providing access to each apartment from a central point on the floor, avoiding marathon circulations to cover all the rooms of the floor. Inside, only a freestanding box is introduced, fragmented transversely by two opposing openings that give access to its interior from the lateral corridors. The box programmatically resolves the rest of the housing needs: it is placed in a way that clearly zones the day and night areas; and it assumes all the service program requirements of a dwelling: kitchen, installations, bathroom, and storage.

CRU innovative housing project in Barcelona. La Rocio, a new residential building with a lot of elegance and character.
CRU innovative housing project in Barcelona. La Rocio, a new residential building with a lot of elegance and character.
CRU innovative housing project in Barcelona. La Rocio, a new residential building with a lot of elegance and character.
CRU innovative housing project in Barcelona. La Rocio, a new residential building with a lot of elegance and character.
CRU innovative housing project in Barcelona. La Rocio, a new residential building with a lot of elegance and character.
CRU innovative housing project in Barcelona. La Rocio, a new residential building with a lot of elegance and character.
CRU innovative housing project in Barcelona. La Rocio, a new residential building with a lot of elegance and character.
CRU innovative housing project in Barcelona. La Rocio, a new residential building with a lot of elegance and character.
CRU innovative housing project in Barcelona. La Rocio, a new residential building with a lot of elegance and character.
CRU innovative housing project in Barcelona. La Rocio, a new residential building with a lot of elegance and character.
CRU innovative housing project in Barcelona. La Rocio, a new residential building with a lot of elegance and character.
CRU innovative housing project in Barcelona. La Rocio, a new residential building with a lot of elegance and character.
CRU innovative housing project in Barcelona. La Rocio, a new residential building with a lot of elegance and character.
CRU innovative housing project in Barcelona. La Rocio, a new residential building with a lot of elegance and character.
CRU innovative housing project in Barcelona. La Rocio, a new residential building with a lot of elegance and character.
CRU innovative housing project in Barcelona. La Rocio, a new residential building with a lot of elegance and character.
CRU innovative housing project in Barcelona. La Rocio, a new residential building with a lot of elegance and character.
CRU innovative housing project in Barcelona. La Rocio, a new residential building with a lot of elegance and character.
CRU innovative housing project in Barcelona. La Rocio, a new residential building with a lot of elegance and character.
CRU innovative housing project in Barcelona. La Rocio, a new residential building with a lot of elegance and character.
CRU innovative housing project in Barcelona. La Rocio, a new residential building with a lot of elegance and character.
CRU innovative housing project in Barcelona. La Rocio, a new residential building with a lot of elegance and character.
CRU innovative housing project in Barcelona. La Rocio, a new residential building with a lot of elegance and character.