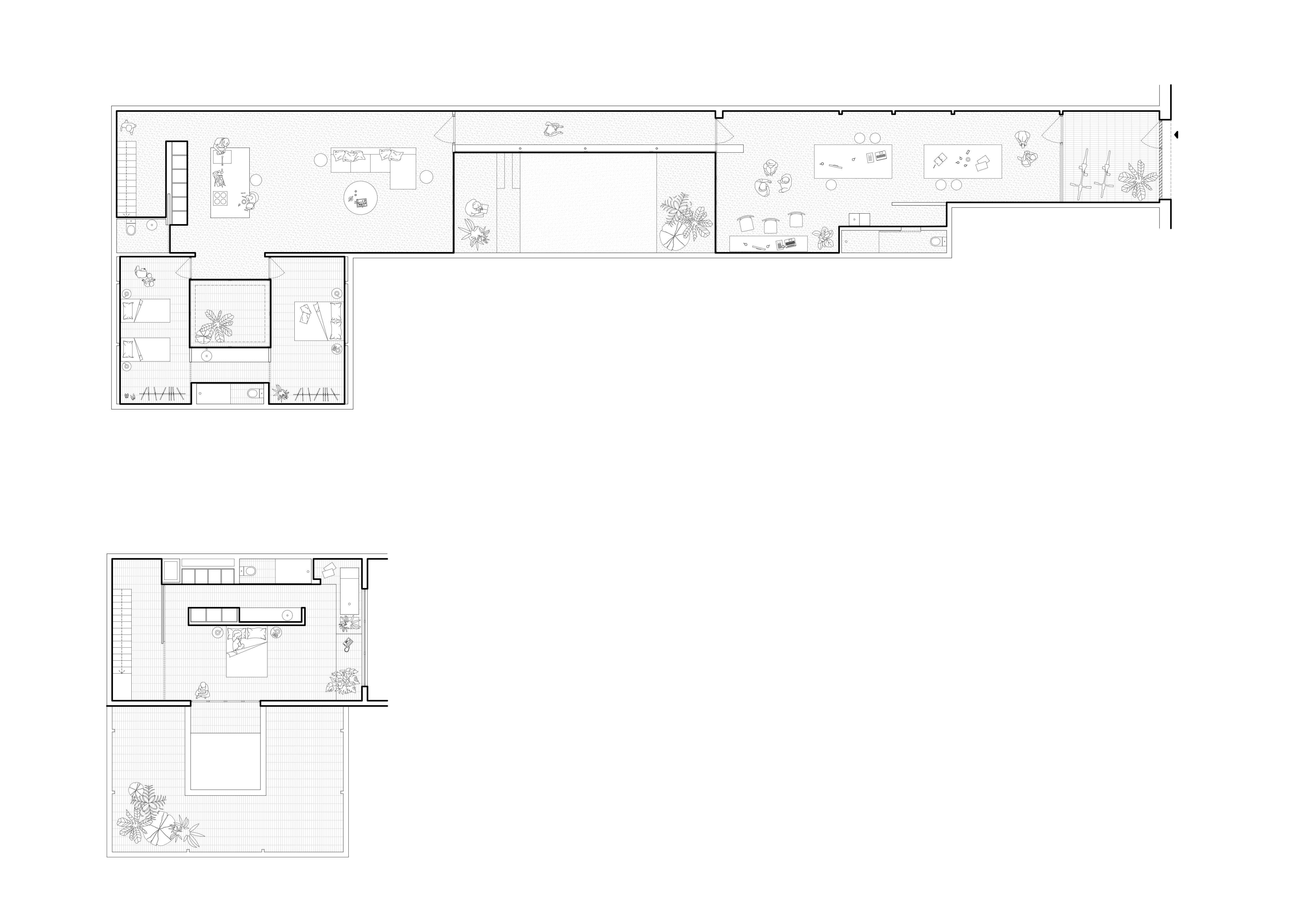
La Clara is the result of hollowing out an old establishment that extended into the chaotic depths of an inner block. A first patio, larger in scale and function, divides the more public space, in contact with the facade, from the bubble of private space, aided by a topographical shift that softens the visual contamination between them. A second patio, smaller in size, allows a similar subdivision into two bedrooms and a bathroom within the private space. With these two gestures, the entire program of the residence is resolved in a simple and organic manner, fitting around these two vertebrae and increasing in privacy as it penetrates inward. The materiality is resolved with an aesthetic of bareness and the unfinished, stripping all existing walls and stairs to reveal only the essence of the preexisting structure.