la Bea

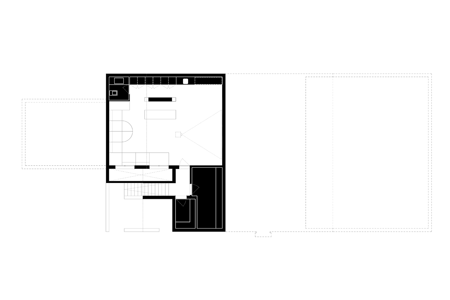
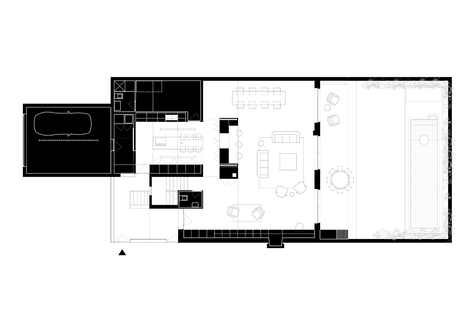
La Bea was the result of the exercise of throwing a series of boxes on a board –the perimeter of the existing house–, sliding until paused in the place from which they were able to solve the project’s program. This dual game of understanding the built together with the void led the project to be sustained on a concept of opposites until it reached its most elemental expression: black and white. The whole house becomes a blank canvas showing its strictly black perforations, notches and scars.

CRU innovative flat renovation project in Barcelona. La Bea, an old apartment renovated into a modern black and white space.
CRU innovative flat renovation project in Barcelona. La Bea, an old apartment renovated into a modern black and white space.
CRU innovative flat renovation project in Barcelona. La Bea, an old apartment renovated into a modern black and white space.
CRU innovative flat renovation project in Barcelona. La Bea, an old apartment renovated into a modern black and white space.
CRU innovative flat renovation project in Barcelona. La Bea, an old apartment renovated into a modern black and white space.
CRU innovative flat renovation project in Barcelona. La Bea, an old apartment renovated into a modern black and white space.
CRU innovative flat renovation project in Barcelona. La Bea, an old apartment renovated into a modern black and white space.
CRU innovative flat renovation project in Barcelona. La Bea, an old apartment renovated into a modern black and white space.
CRU innovative flat renovation project in Barcelona. La Bea, an old apartment renovated into a modern black and white space.
CRU innovative flat renovation project in Barcelona. La Bea, an old apartment renovated into a modern black and white space.
CRU innovative flat renovation project in Barcelona. La Bea, an old apartment renovated into a modern black and white space.
CRU innovative flat renovation project in Barcelona. La Bea, an old apartment renovated into a modern black and white space.
CRU innovative flat renovation project in Barcelona. La Bea, an old apartment renovated into a modern black and white space.
CRU innovative flat renovation project in Barcelona. La Bea, an old apartment renovated into a modern black and white space.
CRU innovative flat renovation project in Barcelona. La Bea, an old apartment renovated into a modern black and white space.
CRU innovative flat renovation project in Barcelona. La Bea, an old apartment renovated into a modern black and white space.
CRU innovative flat renovation project in Barcelona. La Bea, an old apartment renovated into a modern black and white space.
CRU innovative flat renovation project in Barcelona. La Bea, an old apartment renovated into a modern black and white space.
CRU innovative flat renovation project in Barcelona. La Bea, an old apartment renovated into a modern black and white space.
CRU innovative flat renovation project in Barcelona. La Bea, an old apartment renovated into a modern black and white space.
CRU innovative flat renovation project in Barcelona. La Bea, an old apartment renovated into a modern black and white space.
CRU innovative flat renovation project in Barcelona. La Bea, an old apartment renovated into a modern black and white space.