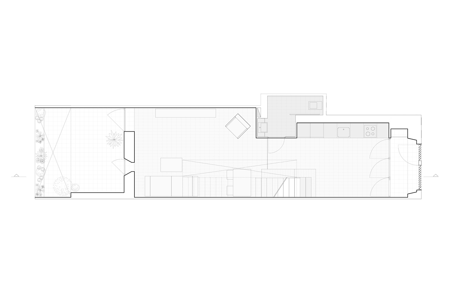
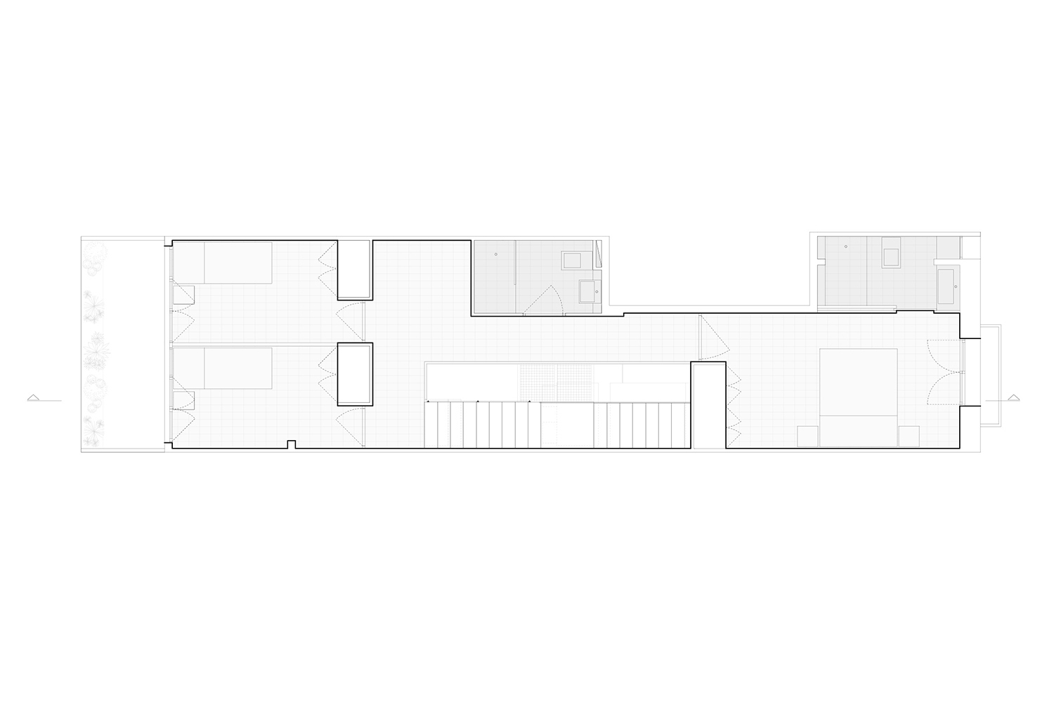
La Diana és l’exercici de vincular visual, volumètrica i funcionalment dues entitats independents i alienes entre elles: un local comercial en planta baixa i un habitatge en planta primera. L’estratègia arquitectònica es va basar en perforar el forjat existent creant un buit suficientment gran com per activar aquesta relació en secció, i on es desplega la comunicació vertical a través d’una escala lleugera tangent a la mitgera existent. Al tractar-se d’una planta baixa, el problema de la intimitat es va resoldre reculant el tancament de façana d’accés respecte la façana existent generant un pati semi-exterior a mode de filtre entre el carrer i l’habitatge.